通风空调系统是建筑工程中重要的分部工程具有工程量大、高空作业多、施工难度高等特点;
通风空调工程施工质量,按照《通风与空调工程施工质量验收规范》GB 50243-2002的有关规定执行。
风道的加工安装工作是指组成整个系统的风管和附件、配件的制作和组装,包括放样、下料、板材连接、法兰制作、风管加固等施工过程,也是从原材料到半成品、成品,最终组合成完整的系统的过程。

注:应优先选用基本系列。
风管材料可分为金属和非金属;
金属风管又分为钢板风管(镀锌钢板风管)、铝板风管及不锈钢风管等;
金属风管目前应用较多,可以作为输送空气(送风排风)、输送烟气、锅炉烟道以及气力输送等场合;
镀锌钢板风管常被用于舒适性空调系统;
铝板风管和不锈钢风管多用在工艺性空调系统(净化空调)和对静电要求较高的场所。
3.风管板材的厚度
非金属风管的板材厚度
无机玻璃钢风管壁厚、成型法兰高度与厚度偏差(mm)





风管有咬口、铆接和焊接三种,其中以咬口连接应用最为普遍。

单平咬口:用于板材的拼接缝和圆风管纵向的闭合缝,以及严密性要求不高的制品接缝。
单立咬口:用于圆风管端头环向接缝,如圆形弯头、圆形来回弯各管节间的接缝。
转角咬口:用于矩形风管及配件的纵向接缝和矩形弯管、三通的转角缝连接。
按扣式咬口:适用于矩形风管和配件的转角闭合缝。一侧的板边加工成有凸扣的插口,另一侧板边加工成折边带有倒钩状的承口,安装时将插口插入承口即可组合成接缝:这种咬口的特点是咬合紧密,运行可靠。

风管和配件的咬口宽度和板材厚度有关,应符合有关规定。

常用的有直线多轮咬口机、圆形弯头联合咬口机、矩形弯头咬口机、合缝机、按扣式咬口机和咬口压实机等。
常用的焊接方法有气焊(氧-乙炔焊)、电焊或接触焊,对镀锌钢板则用锡焊加强咬口接缝的严密性。
常用的焊缝形式有对接缝、角缝、搭接缝、搭接角缝、扳边缝、扳边角缝等。板材的拼接缝、横向缝或纵向闭合缝可采用对接焊缝;矩形风管和配件的转角采用角焊缝;矩形风管和配件及较薄板材拼接时,采用搭接缝、扳边角缝和扳边焊缝。
镀锌钢板的锡焊仅作咬口的配合使用,以加强咬口缝的严密度。锡焊用的烙铁或电烙铁、锡焊膏、盐酸或氯化锌等用具和涂料必须齐备,锡焊必须严格进行接缝处的除锈,方可焊接牢固。
氩弧焊接,氩弧焊接由于有氩气保护了被焊接的板材,故熔焊接头有很高的强度和耐腐蚀性能,且由于加热量集中,热影响区小,板材焊接后不易发生变形,因此更适于不锈钢板及铝板的焊接。
所有焊接的焊缝表面应平整均匀,不应有烧穿、裂缝、结瘤等缺陷,以符合焊接质量要求。

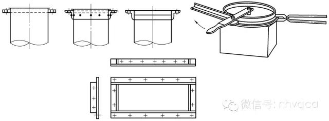
铆接在管壁厚度d≤1.5mm时,常采用翻边铆接,为避免管外侧受力后产生脱落,铆接部位应在法兰外侧。
铆接直径应为板厚的2倍,但不得小于3mm,其净长度L=2δ+1.5~2dmm。D为铆钉直径,δ为连接钢板的厚度,铆钉与铆钉之间的中心距一般为40~l00mm,铆钉孔中心到板边的距离应保持(3~4) d。
手工铆接时,先把板材与角钢划好线,以确定铆钉位置,再按铆钉直径用手电钻打铆钉孔,把铆钉自内向外穿过,垫好垫铁,用钢制方锤打堆钉尾,再用罩模罩上把钉尾打成半圆形的钉帽。这种方法工序较多,工效低,锤打噪声大,工人劳动强度大。
由液压系统、电气系统、铆钉弓钳三部分组成,如下图所示。

法兰有圆形和矩形两种。在通风和空调系统中,法兰用于风管与风管、风管与配件、部件之间的延长连接,同时对风管整体有一定的加固作用,使安装和维修都很方便。

5.金属风管的加固
风道加固的目的是在不改变风管板材厚度以及保持风管截面形状不发生变化情况下,增加管道强度。

当直径大于700mm,两端法兰间距较大时,每隔1.2m左右,加设一道25×4的扁钢加固圈,用铆钉固定在风管上。
当风管周边总长小于板材标准宽度,即用整张钢板宽度折边成型时,可只设一个角咬口;




矩形风管的四角可采用煨角或焊接连接的方法。当采用煨角时,纵向焊缝距煨角处宜大于80mm。
风管与法兰连接应采用焊接,法兰端面应垂直于风管轴线。直径或边长大于500mm的风管与法兰的连接处,宜均匀设置三角支撑加强板,加强板间距不得大于450mm。


硬聚氯乙烯板焊缝形式、坡口尺寸及使用范围

在通风和空调工程中,传统的风管材料是薄钢板(镀锌的或非镀锌的),但因钢板易锈蚀,在潮湿地区尤为严重,使用年限受到很大限制,又有易产生共振、噪音较大等缺陷。
操作中玻璃丝布应相互搭接,法兰处应另有加层。
最后加铺厚的塑料薄膜,再经滚压,揭开薄膜即为成形。然后自然风干,当固化度达到60%后脱胎膜,再揭内衬薄膜。待固化程度达到90%后可以从加工点运往工地。
2.无机玻璃钢风管的质量要求
无机玻璃钢风管分为普通型风管(非保温)、整体保温(中间为绝热层)、组合型和组合保温型四类。
风管表层浆料厚度以压平玻璃纤维网格布为宜(可见布纹)。且表面不得有密集气孔和漏浆。
玻璃钢风道实例玻璃纤维复合板内、外表面层与玻璃纤维绝热材料粘结应牢固,复合板表面应能防止纤维脱落。风管内壁采用涂层材料时,其材料应符合对人体无害的卫生规定。
风管内表面层的玻璃纤维布应是无碱或中碱性材料,并符合现行国家标准《无碱玻璃纤维、无捻粗纱布》JC/T281的规定。内表面玻璃纤维布不得有断丝、断裂等缺陷。
风管宜采用整板材料制作。板材拼接时应在结合口处涂满胶液并紧密粘合;外表面拼缝处预留宽30mm的外护层涂胶密封后,用一层大于或等于50mm宽热(压)敏铝箔胶带粘贴密封。接缝处单边粘贴宽度不应小于20mm。内表面拼缝处可用一层大于或等于30mm宽铝箔复合玻璃纤维布粘贴密封或采用胶粘剂抹缝。


风管加固内支撑件和管外壁加固件的螺栓穿过管壁处应进行密封处理。
风管成型后,管端为阴、阳榫的管段应水平放置,管端为法兰的管段可以立放;
风管应待胶液干燥固化后方可挪动、叠放或安装;风管应存放在防潮、防雨和防风沙的场地。

风管的弯管、三通、异径管及来回弯管等配件所用材料厚度、连接方法及制作要求应符合风管制作的相应规定。

1.硬聚氯乙烯风管及配件的加工
有机玻璃钢风道由于不阻燃,在多数场合下已被禁用,目前多采用无机玻璃钢(又称为玻璃纤维增强氯氧镁水泥无机复合材料)制作通风管道、配件和部件。
复合材料风管是利用两种以上材料制作风道,分为塑料复合钢板(没有保温作用)、酚醛铝箔复合保温风管、聚氨酯复合保温风管、玻纤复合保温风管等。
复合材料风管的覆面材料必须为不燃材料,内部的绝热材料应为不燃或难燃B1级,且对人体无害。
复合材料风管采用法兰连接时,法兰与风管板材的连接应可靠,绝热层不得外露,不得采用降低板材强度和绝热性能的连接方法。

当风管边长小于等于1600mm时,宜采用45°角形槽口处直接粘接,并在粘接缝处两侧粘贴铝箔胶带;

复合板板材切割应使专用刀具,切口应平直。
风管管板组合前应清除油渍、水渍、灰尘,组合可采用一片法、两片法或四片法形式。
组合时应采用45°角切口处应均匀涂满胶剂粘合,粘结缝应平整,不得有歪扭、错位、局部开裂等缺陷。
铝箔胶带粘贴时,其接缝处单边粘贴宽度不应小于20mm,风管内角缝应采用密封材料封堵;

玻璃纤维复合板内、外表面层与玻璃纤维绝热材料粘结应牢固,复合板表面应能防止纤维脱落。
柔性风管也称软管,应选用防腐、不透气、不宜霉变的柔性材料制作。
钢丝表面应有防腐涂层;钢丝直径为0.96mm~1.42mm。
不同种类的柔性风管图片








